It All Begins Here

The Lirette Home

ALTERNATE FIREPLACE WALL

Ignore the view into the hallway.

Office - move files door south. Desk will be parallel to window

1/2 bath - 6” increase

Laundry - all notes sound good. I do not want the washing machine and dryer stacked.

After working on it, I like the idea of moving the door closer to kitchen as shown to allow the window to bring more light into the hall and provide something nicer to see through the door (the window).

Pantry- door moved to hallway to allow for more space. Freezer in pantry. Everything looks good in this section.

Dining- all sounds good. Move door into dining room. No exterior French doors (worry about hurricanes)

Kitchen - panel around fridge is great. I want the sink centered under the arched window. Possibly move the fridge a smidge to add more working space while keeping a coffee nook and centered sink.

Put microwave on shelf in island

Extend island to match new counter length

Family Room - Good with everything. We (mostly Dustin) want to know what size the TV would be

At 9’6"or 114” ( the distance from the tv to the faces on the sectional as I have placed it) the general rule is viewing distance divided by 1.5 to 2 for the ideal screen size.

That gives you a range of 57" to 76" — so ideally somewhere around 65". The problem is your mantel caps you at 55". At 9'6" a 55" screen will feel a little small and you may find yourself leaning in. Not unwatchable, but not ideal either.I have provided the alternative that I would propose which uses display shelves and a wider fireplace which allows for an appropriately sized TV.

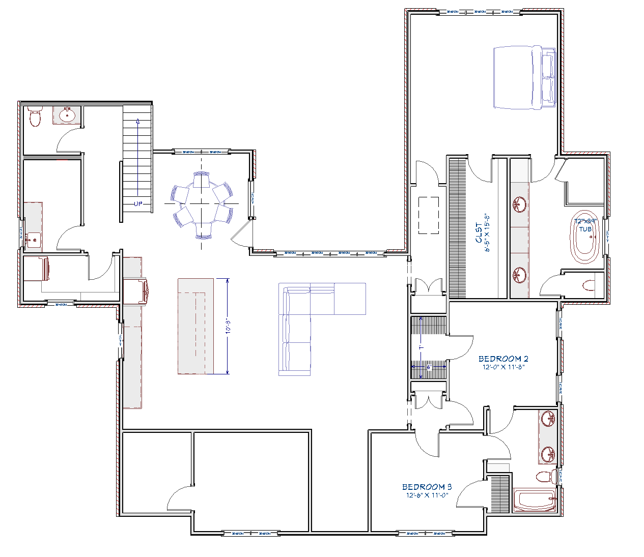
Bedroom 2, 3, Shared Bath - willing to share hallway with kids. Willing to lose one linen closet. Willing to move shared bathroom to have hallway access instead of shared.

I propose switching your son and daughter’s bedrooms.  The closets work better now but bedroom 2 has the larger closet.

Hall- attic access sounds great.

Master bathroom - wish list: his and hers sinks. Hers sink with step down vanity with seating Bathtub for Paige’s 5’9” self. Redesign is fine. Doors for  shower to be installed later.

The new Master Closet has about 6” more of usable hanging space than the old one.  Additionally, with third rod pulldowns, you have a total of 52 linear feet of hanging space.  The final total would depend upon how much is long vs. short hanging.  In the bath, the vanities are side by side but separated by the lowered top for the make up/hair area.  There is a cabinet above the toilet and a full height linen cabinet behind the door.  The shower is the same size as before.